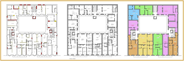
Per questo contest è prevista la ristrutturazione di un edificio a corte degli anni 40 creando in maggior numero di appartamenti.
La difficoltà del progetto è l'impossibilità di modificare le finestre esistenti o di aprirne di nuove e l'impossibilità di demolire i muri portanti ma soltanto i tavolati, in più come vedete tre lati dell'edificio sono completamente ciechi.
Il mio progetto prevede la realizzazione di 9 appartamenti di varie metrature, dal monolocale al 4 locali, rispettando comunque i rapporti areoilluminanti dei locali e cercando di ottenere appartamenti vivibili e facilmente arredabili.
Questo è il mio progetto.


Commenti
Posta un commento